
無錫麗芮酒店與百實科技達成戰略合作,共同開啟智慧酒店新時代。此次合作旨在通過引入先進科技手段,推動酒店服務的智能化升級,為賓客帶來更加舒適便捷的住宿體驗。雙方將共同探索智慧酒店的新模式、新應用,打造智能化、個性化的服務,助力無錫麗芮酒店在激烈的市場競爭中脫穎而出,成為智慧酒店領域的佼佼者。這一合作標志著酒店行業正朝著智能化、現代化的方向邁進,開啟了全新的發展篇章。

一、客戶介紹:
麗芮酒店隸屬錦江集團旗下的高端酒店品牌,便以其高端生活方式品牌的獨特魅力,迅速在全球酒店業嶄露頭角。短短八年間,麗芮酒店如雨后春筍般在全球各地生根發芽,足跡遍布四大洲,運營及籌建酒店已超百家。它繼承了75年的設計精髓,同時邀請全球頂級設計團隊,打造出符合中國市場需求的獨特風格。麗芮以“社區”為核心理念,將大堂、前臺、餐廳融為一體,創造出一種新穎大膽的互聯生活空間,充滿藝術、音樂、設計與風尚的氣息,為賓客帶來個性化、活力四溢的住宿體驗。

二、無錫麗芮酒店合作內容:
1、通信網絡及綜合布線系統
2、 安全防范系統

3、設施設備管理系統
4、音視頻及娛樂系統
5、機房工程
6、智能照明
7、酒店客控系統

8、樓宇自控
9、其他工程
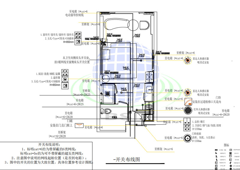
三、無錫麗芮酒店智慧酒店現場施工圖集:

四、無錫麗芮酒店智慧酒店完成后圖集:

微信


電話

返回頂部
